1、安装说明
选择水表口径应根据安装地点的管道直径及流量等于或小于水表常用流量为依据来选择适宜口径的水表;
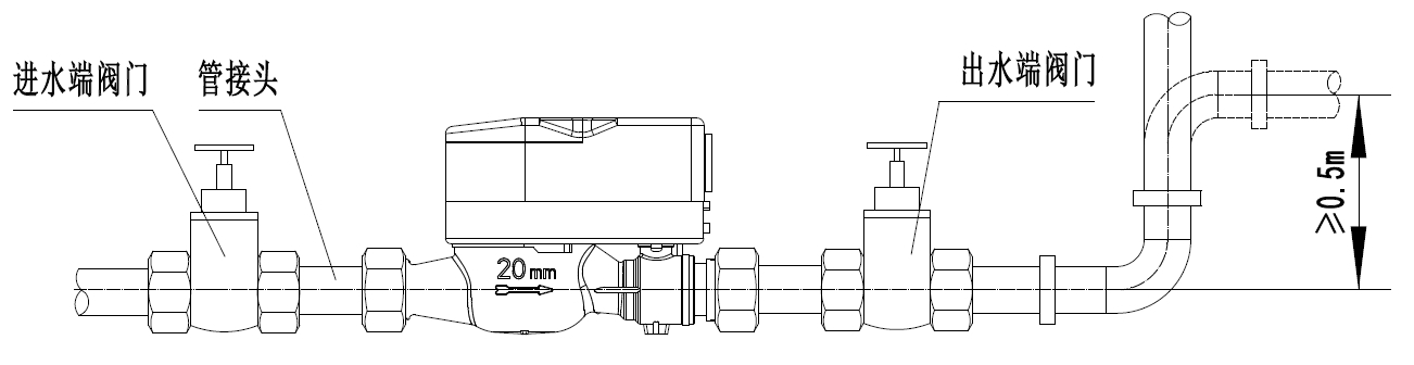
表前应留大于10倍DN、表后应留大于5倍DN的直管段(DN为表的口径);
安装位置应选择方便拆卸和易读取水表计量数据的地方,应避开曝晒、雨淋、水淹、污染和有外磁干扰的环境。在有冰冻期间,除将水表和水管包扎外,不用时把水表进水端阀门关闭,出水端放水阀和水龙头打开,以防止水表因冰冻膨胀而损坏;
安装时(特别是新管段)应避免麻丝、胶带、砂石等杂物进入水表管道内,造成水表计量故障;
安装时,为了计量准确,水表出水口管道安装应高于水表不少于0.5米、在水表前面管道上应安装阀门以便在拆卸水表时可以关闭水源。水表不应直接与管道连接,水表与管道间应有活接头(如管接头、连接螺母、接管密封垫圈等)。拆装水表时,切不可用力硬扳,以免损坏水表;
安装时必须使表壳上水流指示箭头与水流方向保持一致。安装方式必须按水表读盘上标明的水平或立式安装,并使读盘朝上;
水表如安装在锅炉或太阳能热水器进水管处,应防止热水倒流造成水表损坏;
2、安装示意图

上一篇:怎么样把控磁保持继电器的质量?